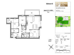
RESIDENCE LES JARDINS DE ROSE ? Appartement T4 neuf avec balcon à Ambérieu-en-BugeyLivraison prévue au plus tard en mars 2027 ? Construction en cours.PRIX CLÉS EN MAIN ? NOTAIRE INCLUS !Et si vous vous offriez le confort du neuf dans une résidence intimiste et élégante ?Dans une résidence de standing norme RT2012 composée de seulement 11 logements, découvrez ce superbe appartement T4 neuf situé au 1er étage, à proximité immédiate des commerces et services de la ville. Exposition EST, offrant une belle luminosité dès le matin.D'une surface généreuse de 91,45 m² habitables, cet appartement séduit par ses beaux volumes et sa clarté.La pièce de vie s'ouvre sur un agréable balcon de 10 m², parfait pour profiter des beaux jours et des petits-déjeuners au soleil.L'espace nuit comprend :3 chambres confortables,une salle d'eau moderne équipée.La cuisine reste à installer selon vos envies ainsi que les placards muraux, pour créer un intérieur qui vous ressemble.Prestations de qualité pour un confort optimal :chauffage par pompe à chaleur avec plancher chauffant,volets roulants électriques,carrelage grand format 60x60,parquet stratifié dans les chambres.Chaque appartement dispose de sa cave privative.Stationnement et garage possibles en option.Local à vélos.Une résidence calme, élégante et sécurisée, idéale pour une vie de famille ou un investissement serein.Frais de notaire réduits et inclus dans le prix de vente.LOT B101 avec cave 36.Contactez moi pour plus d'informations :Marie Oberlé 06 25 67 20 44Agent commercial RSAC 802 463 380 Bourg-en-Bresse.
91.45 m²
2 761 €
4
3
Oui (56 lots)
Contact ERA > Marie OBERLE
Contacter gratuitement à l'aide du formulaire ci-dessous.