Votre agence ERA, à Bourges, a trouvé le bon coin pour se loger, avec cet appartement situé à l'arrière d'une maison de maître chargée d'histoire.Ce bien se trouve en rez-de chaussée à l'arrière d'une élégante demeure construite par Monsieur Forest, après la création des célèbres Forestines. Il y a vécu pendant plusieurs années, conférant à cette maison une véritable identité patrimoniale. Transformée ensuite en restaurant de renom, Le Jardin Gourmand, elle a accueilli des générations de Berruyers jusqu'en 2021, avant d'être récemment divisée en plusieurs appartements.L'appartement proposé offre une surface de 59 m² à personnaliser entièrement selon vos envies. Les réseaux d'eau, d'électricité, de fibre optique ainsi que les évacuations ont déjà été installés, vous permettant de démarrer votre projet dans de bonnes conditions. Les parties communes ont été intégralement rénovées, et les extérieurs de la copropriété ont été réaménagés par un paysagiste.Situé au coeur de Bourges, à deux pas de la cathédrale, de la place Malus, des marais et de toutes les commodités, ce bien rare réunit charme, emplacement de choix et potentiel d'aménagement.Contactez-nous dès maintenant pour organiser une visite et découvrir ce lieu rempli d'histoire.Nous vous accompagnerons dans votre projet avec des devis chiffrés pour réaliser les travaux et faire de cet appartement, un bien qui vous ressemble.Les informations sur les risques auxquels ce bien est exposé sont disponibles sur le site Géorisques : www.georisques.gouv.fr
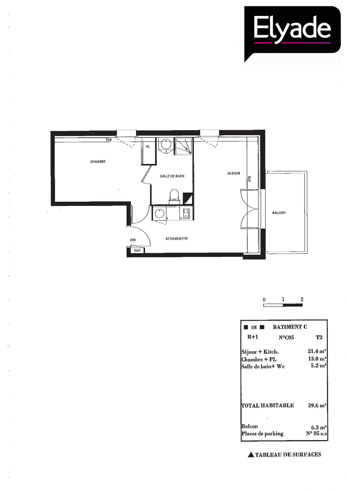
59.7 m²
1 497 €
2
1
Oui (22 lots)
Contact ERA > ERAIMMOBILIERAVARICUM
Contacter gratuitement à l'aide du formulaire ci-dessous.