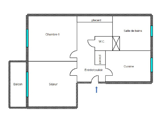
St Raphael- Era vous propose en exclusivité un appartement situé dans un secteur résidentiel apprécié de St Raphael, au 3èmè étage sur 7 d'une résidence avec ascenseur. Cet appartement 4 pièces de 79 m² séduit par sa luminosité et son cadre de vie agréable.Grâce à son exposition plein sud, l'espace de vie bénéficie d'une belle lumière naturelle tout au long de la journée.L'appartement se compose d'un séjour confortable, d'une cuisine, de trois chambres, idéales pour une famille ou pour aménager un bureau, ainsi que d'une salle de bain.Le bien se situe à proximité des commerces, des écoles, des transports et des axes principaux, facilitant le quotidien. Le secteur permet également un accès rapide aux plages de Fréjus, aux espaces verts et aux infrastructures sportives et culturelles de la ville.Un appartement aux beaux volumes, fonctionnel et lumineux, offrant un cadre de vie pratique et agréable, aussi bien pour une résidence principale que pour un investissement.
L'Etat des Risques et Pollution peut être consulté sur https://www.georisques.gouv.fr
79.32 m²
2 748 €
4
3
Contact ERA > Mickaël FREYMONT
Contacter gratuitement à l'aide du formulaire ci-dessous.