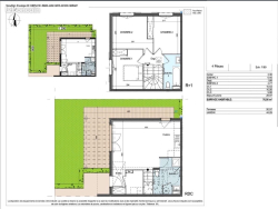
Dans un environnement calme et ensoleillé, au coeur de la charmante commune d'Auribeau-sur-Siagne, découvrez ce magnifique T4 neuf en duplex alliant confort moderne et qualité de vie.D'une surface de 77 m², ce bien se compose d'un bel espace de vie lumineux, idéalement exposé Ouest, ouvert sur une terrasse de 21 m² avec jardin privatif de 44 m², parfait pour profiter des beaux jours.L'espace nuit offre 3 chambres, pensées pour le confort de toute la famille.Prestations de qualité :- Construction neuve aux normes 2025- Logement PMR- Duplex fonctionnel et moderne- Exposition Ouest garantissant une belle luminosité- Environnement résidentiel recherché- 2 places de parking privativesLivraison prévue : mars 2026Pour toute question ou visite appeler Frédéric : 0619829596
77 m²
5 973 €
4
3
2
Oui
Oui (200 lots)
Contact ERA > ERAVDIMMOBILIER
Contacter gratuitement à l'aide du formulaire ci-dessous.