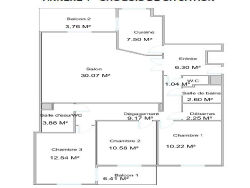
Exclusivité ERA Bécon les Bruyères Emplacement recherché, face au parc de BéconCet appartement vous séduira par ses nombreux atouts : résidence avec gardien, Double box, 2 BALCONS, et un grand potentiel d'aménagement. Il s'agit d'un bel appartement de 96,15 m² à Bécon les Bruyères, Courbevoie, situé au Boulevard Saint-Denis, angle Rue Cayla.L'appartement se compose de 4 à 5 pièces, dont 3 CHAMBRES de 10,22 m², 10,58 m² et 12,54 m², toutes orientées sur le jardin privatif de la copropriété, offrant calme, verdure et intimité. Une salle de bains, une salle d'eau et 2 W-C dont un séparé complètent l'espace nuit.La cuisine indépendante, aménagée et équipée, peut rester séparée ou être ouverte sur le salon selon vos envies, offrant un grand potentiel d'aménagement. Les 2 balcons de 7 m² et 4 m² prolongent agréablement la pièce de vie, et toutes les chambres donnent sur cet axe extérieur, apportant calme et vue sur le jardin de la copropriété. L'appartement dispose également de nombreux rangements et placards intégrés, pour un espace pratique et fonctionnel.DPE D Fort potentiel d'aménagement : possibilité d'ouvrir la cuisine (6,30 m²) et l'entrée (7,50 m²) sur le salon de 30,07 m² pour créer une grande pièce de vie de plus de 43 m².Situé au 1er étage d'une résidence de 1977, l'appartement est en bon état général, avec chauffage collectif au gaz, ascenseur et aucun travaux de copropriété à prévoir (le ravalement de façade a déjà été payé par le propriétaire).Atouts supplémentaires : DPE D, BALCONS, DOUBLE BOX , Gardien, Dressing indépendant, nombreux rangements, cadre résidentiel et environnement verdoyant.
L'Etat des Risques et Pollution peut être consulté sur https://www.georisques.gouv.fr
96.15 m²
7 592 €
4
3
2
Oui (185 lots)
Contact ERA > Laurent GUETTA
Contacter gratuitement à l'aide du formulaire ci-dessous.