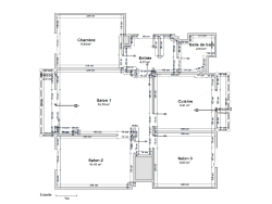
NOUVEAUTE en exclusivité T3 Pont Trinquat traversant avec balcons, proche Gare et place CarnotDans une résidence récemment ravalée, découvrez cet appartement T4 traversant offrant une belle luminosité et un fort potentiel d'aménagement, idéal pour un projet de résidence principale ou d'investissement.L'appartement se compose d'un séjour lumineux avec vue agréable, ouvrant sur un petit balcon, de trois chambres, d'une cuisine séparée avec balcon, d'une salle d'eau et de rangements.Le bien permet facilement une reconfiguration en grand T3, en ouvrant une chambre sur le séjour et en créant une cuisine ouverte, pour une pièce de vie plus contemporaine.Les menuiseries en double vitrage ont déjà été remplacées.Quelques travaux d'embellissement permettront de révéler tout le potentiel de l'appartement et de le remettre au goût du jour.Côté emplacement, la situation est particulièrement pratique :Gare accessible à pied en environ 7 minutesPlace Carnot à 3 minutes à piedCommerces, transports et centre-ville à proximité immédiateUn bien offrant de beaux volumes, de la luminosité et un emplacement recherché, le tout à un prix attractif pour un T4.
L'Etat des Risques et Pollution peut être consulté sur https://www.georisques.gouv.fr
64.24 m²
2 880 €
3
2
Oui (59 lots)
Contact ERA > ERALANGUEDOCIMMOBILIER
Contacter gratuitement à l'aide du formulaire ci-dessous.