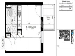
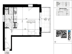
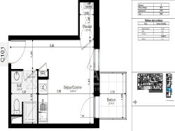
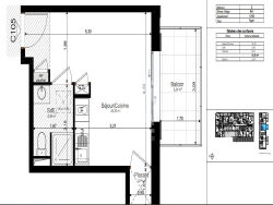
Vous cherchez un investissement locatif sécurisé et rentable ? La résidence ETIK propose des T1 idéaux au coeur du secteur CHU Bretonneau + Faculté de Médecine où la demande locative est constante et qualitative. Découvrez des T1 allant de 17.50 à 24.90 m² exposé sud et offfrant un balcon ce qui est rare pour une petite surface. Offrez un confort de vie à vos futurs locataires tout en vous permettant d'optimiser vos loyers. Une place de parking privé est possible en plus.Autres biens proposés : - Deux T1 de 17.50 m² à 124 000 ? FAI ( 6% d'honoraires TTC )- Un T1 de 18.95 m² à 132 500 ? FAI ( 6% d'honoraires TTC )- Un T1 de 18.67 m² à 133 000 ? FAI ( 6% d'honoraires TTC )- Un T1 de 21 m² à 150 000 ? FAI ( 6% d'honoraires TTC )- Un T2 de 42.31 m² à 186 500 ? FAI (6% d'honoraires TTC)- Un T2 de 43.51 m² à 199 000 ? FAI (6% d'honoraires TTC)Livraison : 4e trimestre 2027.
24.91 m²
6 624 €
1
Oui
Oui (18 lots)
Contact ERA > Damien DUPIN
Contacter gratuitement à l'aide du formulaire ci-dessous.