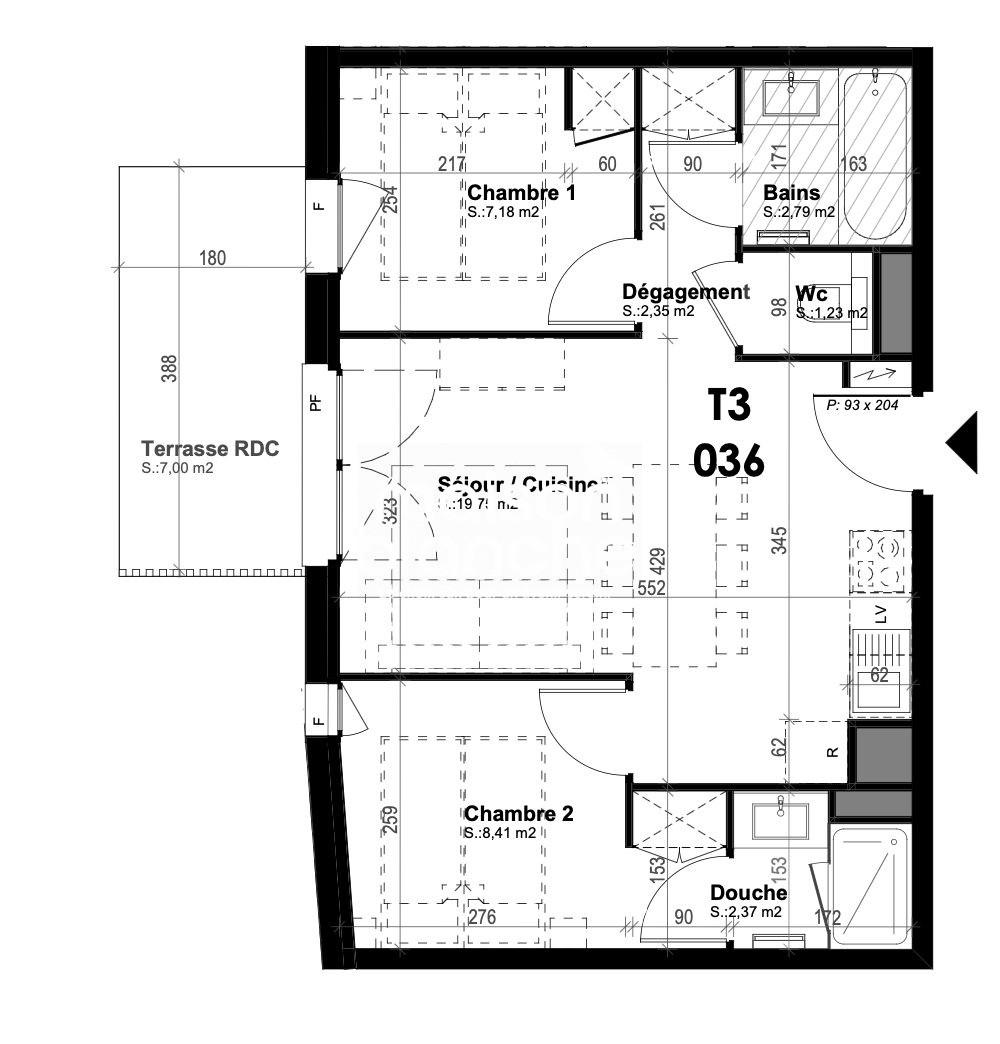
Rare sur le secteur ! Découvrez ce spacieux T2 de 49 m² idéalement situé à Tarnos centre, au sein d'une résidence récente et sécurisée (2006).Profitez d'une belle pièce de vie ouverte sur une terrasse agréable avec vue dégagée, parfaite pour vos moments de détente. Chambre avec placards intégrés, salle d'eau moderne, WC séparés : tout est pensé pour votre confort.À seulement quelques pas de toutes les commodités (commerces, services, Tram'bus), cet appartement vous offre un cadre de vie calme et résidentiel. Une place de parking privative en sous-sol complète ce bien. Faibles charges : seulement 71?/mois. Classe énergie C.Que vous soyez primo-accédant, investisseur ou en quête d'un pied-à-terre idéal, ce bien est fait pour vous !Réf. 4022 / Prix : 165 000 ?Ne tardez pas, contactez-nous dès maintenant pour organiser une visite !
L'Etat des Risques et Pollution peut être consulté sur https://www.georisques.gouv.fr
49 m²
3 367 €
2
1
1
Oui (67 lots)
Contact ERA > Aurélien BACH
Contacter gratuitement à l'aide du formulaire ci-dessous.