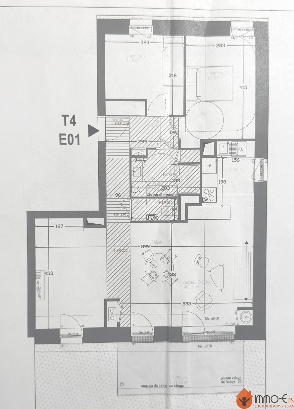
Dans une résidence au coeur du centre historique de Brie-Comte-Robert, cet appartement de type 5 pièces situé au troisième et dernier étage avec loggia dispose d'une vue époustouflante sur la ville et sa célèbre église Saint-Étienne édifiée en 1230.D'une superficie de 122 m2 habitables, ce bien séduit par son séjour de plus de 46 m2 baigné de lumière et disposant d'un accès direct à la loggia.Une cuisine moderne, indépendante aménagée et équipée viendra ravir les amoureux de la cuisine par ses espaces fonctionnels et un plan de travail confortable.Côté nuit, cet appartement dispose de trois chambres, d'un dressing/buanderie indépendant, d'une salle de bains et d'une salle d'eau avec douche à l'italienne.Enfin, deux toilettes indépendants et de multiples placards soigneusement intégrés viennent compléter la partie habitable de cet appartement d'exception. Au sous-sol de la résidence un triple box fermé dévoile deux/trois places de parking pouvant également servir d'espace de stockage généreux.Enfin une place de stationnement aérienne privative complète le stationnement.Ce bien d'exception proposé en exclusivité par ERA BEL'IMMO permet de jouir de toutes les commodités du centre-ville tout en profitant d'un calme absolu au-dessus des toits de Brie-Comte-Robert.Pour plus de photos ou d'informations, veuillez prendre contact avec Arthur FOSSOYEUX.
L'Etat des Risques et Pollution peut être consulté sur https://www.georisques.gouv.fr
122.89 m²
2 791 €
5
3
1
1
Oui (216 lots)
Contact ERA > ARTHUR FOSSOYEUX
Contacter gratuitement à l'aide du formulaire ci-dessous.