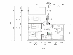
A vendre dans votre agence Era Immobilier Bastia :Découvrez sur la commune de Olmeta di Tuda dans la région du Nebbiu-Conca d'Oru, quatre villas individuelles de plain-pied, alliant confort moderne, performance énergétique et cadre naturel préservé. Situé dans un parc arboré à 9 km de Saint Florent et à 20 minutes de l'aéroport de Bastia.Chaque villa de type T4 offre 76 m² habitables sur un terrain à partir de 551 m², avec la possibilité en option d'aménager piscine , garage, terrasse selon vos envies.Prestations : climatisation réversible quadri-split, un ballon thermodynamique de 200 litres , isolation toiture et murs conforme à la RT 2020, des menuiseries aluminium à double vitrage avec volets bois, un tableau électrique neuf aux normes NF C 15-100. Possibilités de choix et d'harmonies sur divers matériaux. Contact Informations & Conseils : Andrea Tartaroli - 06.46.56.22.68
76 m²
3 882 €
690 m²
4
3
Contact ERA > ERABASTIAIMMOBILIER
Contacter gratuitement à l'aide du formulaire ci-dessous.