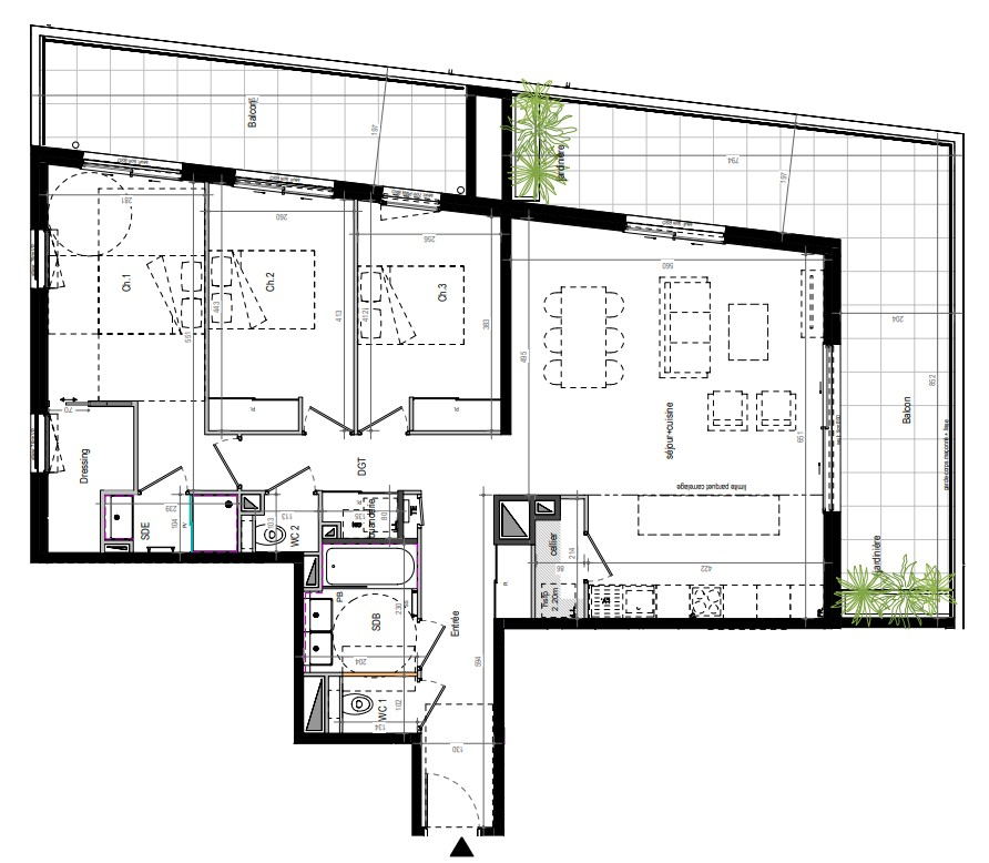
Dans l'une des adresses les plus prisées d'Écully, au sein d'une résidence soignée et sécurisée, ce beau 103m² saura séduire les acquéreurs les plus avertis.Lumière naturelle, volumes généreux et vue dégagée : dès le premier regard, cet appartement impose son caractère. Le vaste séjour double, prolongé par une terrasse agréable, invite à la détente et aux moments conviviaux. Les chambres, habillées d'un parquet massif chaleureux, offrent un cadre reposant et élégant. Les nombreux rangements intégrés apportent un confort d'usage appréciable au quotidien.Le bien a été pensé dans ses moindres détails : huisseries en double vitrage récentes, agencement fluide et optimisé, décoration soignée. Un vrai appartement clé en mains, sans travaux à prévoir.La résidence dispose d'équipements de loisirs remarquables : piscine, tennis et espaces verts, pour profiter d'un cadre de vie privilégié à deux pas du centre-ville.À pied, vous accéderez facilement à l'ensemble des commodités : commerces de proximité, , restaurants, pharmacie, boulangerie, boucherie, et bureau de poste.Calme, standing et praticité : tout ce que vous recherchez réuni en une seule adresse.Bien présenté par ERA Immobilier Écully ? Agence Bonnefoy4 avenue Édouard Aynard ? 69130 Écullycontact téléphonique : 04 x 78 x 33 x 91 x 09
103 m²
5 427 €
4
2
Oui
Oui
Oui (467 lots)
Contact ERA > ERAAGENCEBONNEFOYECULLY
Contacter gratuitement à l'aide du formulaire ci-dessous.