139m² - 4 chambres possibles - Profession libérale possible
Paris 75006
0
*** LIEN DE VISITE VIRTUELLE SUR DEMANDE ****
Rue du Four, au c?ur du 6ème arrondissement entre Saint Germain des Prés et le Bon Marché, à proximité immédiate des commerces et de trois stations de métro, se situe cet appartement chargé d'histoire dans lequel a été créé le Conseil National de la Résistance en 1943.
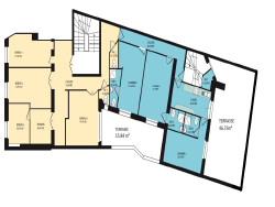
Au 1er étage avec ascenseur d'un bel immeuble en pierre de taille (1880), cet appartement de 8 pièces (139,4 m² carrez) a longtemps été utilisé à la fois comme bureau et habitation. Il dispose ainsi à la fois d'une destination commerciale (pour 80m²) et d'une destination d'habitation (60m²).
Il est aujourd'hui agencé de la manière suivante :
-Partie commerciale : entrée, 4 bureaux, dégagements, 2 WC séparés.
-Partie habitation : 3 chambres (disposant chacune d'un WC et d'une douche), cuisine.
Des travaux de rénovation globale sont à prévoir pour le transformer, au choix, soit en un appartement d'habitation (4 chambres possible) soit en un lieu d'exercice pour une profession libérale.
L'appartement a accès à deux toitures-terrasses (de respectivement 46.4 m² et 15.8m²) mais n'en a pas la jouissance.
Cet appartement cumule de très nombreux atouts :
- Situation idéale au c?ur du 6ème arrondissement,
- Historique extraordinaire,
- Belle copropriété bien entretenue,
- Possibilité d'exploiter les lieux soit en appartement soit en profession libérale,
- Partie de l'appartement qu'il est possible d'occuper commercialement,
- Triple exposition,
- Gardienne
Toutes ces qualités font de cet appartement une occasion unique pour qui recherche emplacement premium, belle copropriété, modularité et sera sensible à l'important morceau d'histoire que représente ce bien hors normes.
Mentions légales :
- Prix de commercialisation 1 999 000€ comprenant prix net vendeur 1 922 110 € et honoraires charge acquéreur 76 890€.
- Le montant estimé des dépenses annuelles d'énergie pour un usage standard se situe entre 1 710 € et 2 390 € par an (prix moyen des énergies indexé au 1er janvier 2021).
- Les informations sur les risques auxquels ce bien est exposé sont disponibles sur le site Géorisques : www.georisques.gouv.fr.
- Pas de procédure en cours.
- Copropriété comprenant 23 lots principaux (38 lots au total).
- Loyer de référence majoré (location nue) : 32.6€/m²/mois, hors charges, soit 4 544€ HC.
- Loyer de référence majoré (location meublée) : 37.2€/m²/mois, hors charges, soit 5 186 € HC
*** LIEN DE VISITE VIRTUELLE SUR DEMANDE ****
Bien présenté par Agences de France par délégation.
Agences de France ? SIREN : 899413603 ? Titulaire de la carte T : 29012021000000009 non habilité à percevoir des fonds
140 m²
14 279 €
7
4
Nord
Consommations énergétiques
Logement économe
206
Logement énergivore (kWhEP/m2/an)
Émissions de gaz à effet de serre
Faible émission de GES
6
Forte émission de GES(kgeqCO2/m2/an)
Contact Vincent DE SAINT-PERN
Contacter gratuitement à l'aide du formulaire ci-dessous.