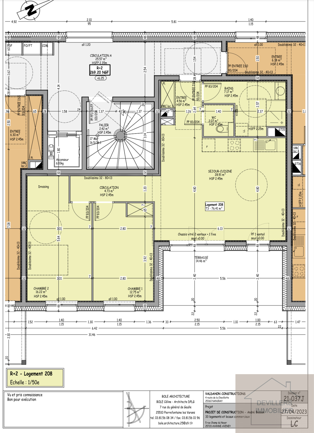
Appartement duplex 76 m2 dernier étage + garage/appartement T2 au RDC.
Bienvenue dans ce charmant duplex T3/T4, niché au coeur du village d'Avanne-Aveney, au sein d'une petite copropriété conviviale. Situé à la Maison PAGET, 4 rue de l'Abondance, cet appartement rénové avec soin n'attend plus que vous.
Caractéristiques de l'appartement :
Lumineux et moderne : L'appartement a été entièrement rénové et mis aux normes. Chaque détail a été pensé pour offrir un espace de vie agréable et confortable.
Vue pittoresque : Au troisième niveau, l'entrée s'ouvre sur un salon séjour cuisine lumineux, donnant accès à un balcon de 1x2.5 mètres, offrant une vue panoramique sur le village et le Doubs.
Espace de vie fonctionnel : Ce niveau comprend également une salle de bain et une chambre. Un escalier vous amène sous les combles qui couvrent toute la surface de l'immeuble, offrant une chambre supplémentaire et un espace mezzanine polyvalent, transformable en une autre chambre.
Stationnement facile : Vous bénéficierez d'un parking gratuit au pied de l'immeuble, assurant un accès pratique à votre domicile.
Annexe garage aménagé :
Le garage situé au RDC a été transformé en appartement T2 de plain-pied d'environ 45 m2 avec un balcon. Il manque l'autorisation de changement de destination et de raccordement à l'eau par la copropriété manque (Permis obtenu par le service urbanisme en revanche). Le raccordement à l'électricité a été autorisé par la copropriété.
Localisation idéale :
Profitez de la proximité immédiate de toutes les commodités : maisons médicales, médecins généralistes, kiné, pharmacie, coiffeur, supermarché Colruyt, école et crèche. Vous serez également à quelques minutes des principaux centres d'activité de la région :
Châteaufarine (5 minutes)
Zone Lafayette
Hôpital Jean Minjoz (CHU CHRU), l'un des plus grands employeurs locaux
Autoroute Besançon Ouest
Les communes du Grand Besançon Métropole telles que Franois, Grandfontaine, Avanne-Aveney, Beure et Montferrand-le-Château sont facilement accessibles.
Adresse :
Maison PAGET, 4 rue de l'Abondance, 25720 Avanne-Aveney
Ne manquez pas cette occasion unique de vivre dans un cadre idyllique tout en restant proche des commodités essentielles et des grands centres d'activité.
Cette annonce vous est proposée par SANCHEZ Théo - - NoRSAC: 830269080, Enregistré à Greffe du tribunal de commerce de BESANCON
Les informations sur les risques auxquels ce bien est exposé sont disponibles sur le site Géorisques : www.georisques.gouv.fr - Annonce rédigée et publiée par un Agent Mandataire -
76 m²
2 882 €
3
2
1
3 sur 3
Ouest
Nord
Oui
Consommations énergétiques
Logement économe
318
Logement énergivore (kWhEP/m2/an)
Émissions de gaz à effet de serre
Faible émission de GES
99
Forte émission de GES(kgeqCO2/m2/an)
Contact SANCHEZ
Contacter gratuitement à l'aide du formulaire ci-dessous.