2 pièces avec balcon à 2 min du RER E ? Idéal 1er achat ou investissement
Gagny 93220
0
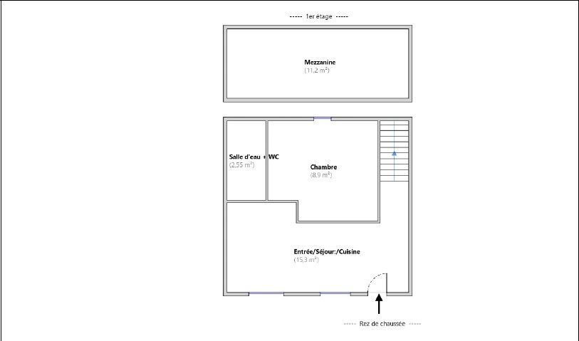
Situé dans un immeuble bien entretenu des années 70, ce charmant appartement 2 pièces offre une superficie Loi Carrez de 43,11 m² (51,71 m² de surface au sol). Il se trouve à proximité immédiate du centre-ville de Gagny, dans un quartier dynamique et recherché pour sa proximité avec toutes les commodités et notamment la gare RER E de Gagny, accessible en quelques minutes à pied, permettant de rejoindre Paris rapidement.
L'appartement se compose d'un séjour lumineux de 19,24 m² donnant sur la rue principale, avec un accès direct à un agréable balcon de 8,6 m². La cuisine, attenante au séjour, mesure 5,17 m². La chambre, au calme, bénéficie d'un double vitrage et s'étend sur 10,5 m². Une salle d'eau avec WC complète le bien (3,95 m²). L'entrée, fonctionnelle, propose 4,25 m² d'espace supplémentaire.
Le bien est équipé de volets roulants électriques. Les menuiseries sont en simple vitrage, hormis dans la chambre, équipée de double vitrage. L'exposition nord garantit une température agréable en été. Le chauffage est collectif au gaz, inclus dans les charges de copropriété s'élevant à environ 590 € par trimestre.
Ce bien est vendu sans cave ni stationnement (mais possibilité d'acquérir un parking en sus ) Il conviendra parfaitement à un primo-accédant ou à un investisseur recherchant un bien proche des transports, des commerces, des écoles et du marché de Gagny.
La taxe foncière s'élève à environ 1 200 €.
Cette annonce référence 291803 vous est présentée par votre agent commercial BSK Immobilier SANDRINE PAKULA (EI) immatriculé au RSAC de BOBIGNY (93000) sous le numéro 82756608400022.
Prix du bien : 170 000,00 €
Les honoraires d'agence sont à la charge du vendeur.
A propos de la copropriété :
Pas de procédure en cours.
Nombre de lots : 52
Charges prévisionnelles annuelles : 2 360,00 €
A propos des performances énergétiques :
Date de réalisation du diagnostic énergétique : 25/05/2025
Score DPE : 315 kWhEP/m²/an
Score GES : 65 kgepCO2/m²/an
Montant estimé des dépenses annuelles d'énergie pour un usage standard : entre 1100.00 € et 1540.00 € par an. Prix moyens des énergies indexés sur l'année 2023 (abonnements compris).
Les informations sur les risques auxquels ce bien est exposé sont disponibles sur le site Géorisques : www.georisques.gouv.fr
43 m²
3 953 €
2
1
1
4 sur 6
1970
Nord
Oui
Oui
Consommations énergétiques
Logement économe
315
Logement énergivore (kWhEP/m2/an)
Émissions de gaz à effet de serre
Faible émission de GES
65
Forte émission de GES(kgeqCO2/m2/an)
Contact SANDRINE PAKULA
Contacter gratuitement à l'aide du formulaire ci-dessous.