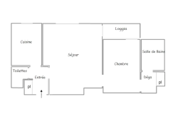
À 6 minutes à pied du métro Pointe du Lac (ligne 8), découvrez ce 2 pièces de 1er étage avec ascenseur, idéalement situé dans une copropriété de 1992. Atouts du bien : - Loggia avec vue dégagée sur un jardin intérieur, prolongement agréable du séjour et de la chambre. - Cuisine aménagée, entrée avec placard, dégagement avec rangements, salle d'eau et WC séparé. - Parking en sous-sol inclus. - Chauffage urbain (géothermie) compris dans les charges, avec comptage individuel pour une gestion optimisée.Quartier calme et bien desservi. Proximité des commodités et des transports. Idéal pour un premier achat, un investissement locatif ou une résidence principale. Contactez-nous pour une visite !
48.3 m²
4 609 €
3 m²
20 m²
2
1
1
1
1 sur 4
189 € / mois
1992
Est
1 (3 m²)
Oui
1
Oui
Oui
Consommations énergétiques
Logement économe
182
Logement énergivore (kWhEP/m2/an)
Émissions de gaz à effet de serre
Faible émission de GES
17
Forte émission de GES(kgeqCO2/m2/an)
Contact VAJOU
Contacter gratuitement à l'aide du formulaire ci-dessous.