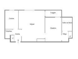
À seulement 6 minutes à pied du métro Pointe du Lac (ligne 8), découvrez ce très agréable 2?pièces situé au 1er étage d'une résidence récente et bien entretenue (1992) avec ascenseur. Un bien rare sur le secteur, idéal pour habiter ou investir. Les points forts qui font la différence - loggia avec vue dégagée sur le jardin intérieur : un véritable espace de vie supplémentaire, accessible depuis le séjour et la chambre. - Agencement optimisé : entrée avec placard, cuisine aménagée, dégagement avec rangements, salle d'eau et WC séparé. - Place de parking en sous?sol incluse, un atout précieux dans le quartier. - Chauffage urbain par géothermie, inclus dans les charges, avec comptage individuel pour une consommation maîtrisée et économique. Un cadre de vie recherché - Situé dans un environnement calme, à proximité immédiate des commerces, des transports et des services du quotidien, cet appartement offre un confort de vie idéal. - Que vous recherchiez un premier achat, un investissement locatif rentable ou une résidence principale agréable, ce bien coche toutes les cases. - Une visite s'impose : contactez?nous dès maintenant pour découvrir ce 2?pièces au fort potentiel.
48.3 m²
4 327 €
3 m²
20 m²
2
1
1
1
1 sur 4
189 € / mois
1992
Est
1 (3 m²)
Oui
2
Oui
Oui
Consommations énergétiques
Logement économe
132
Logement énergivore (kWhEP/m2/an)
Émissions de gaz à effet de serre
Faible émission de GES
9
Forte émission de GES(kgeqCO2/m2/an)
Contact VAJOU
Contacter gratuitement à l'aide du formulaire ci-dessous.