Goodshowcase

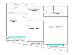
Vente appartement 2 pièces
329 000 €

Contact Mt Agency

Contacter gratuitement à l'aide du formulaire ci-dessous.


Afficher le téléphone


Annonces similaires

Vente appartement

Menton 06500 - 0

265 000 €

...Double vitrage...

Voir l'annonce

Vente appartement

Menton 06500 - 0

379 500 €

...L'appartement bénéficie d'une entrée indépendante, il se compose d'un séjour avec cuisine équipée...

Voir l'annonce

Vente appartement

Menton 06500 - 0

310 000 €

...Entierement rénové, il se compose d'une entrée avec placard, d'un séjour avec cuisine américaine...

Voir l'annonce

Vente appartement

Menton 06500 - 0

280 000 €

...46m2 Loi Carrez...

Voir l'annonce

Vente appartement

Menton 06500 - 0

299 000 €

...Complété d'une cave...

Voir l'annonce