Goodshowcase

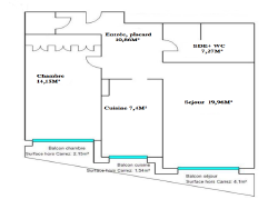
Vente appartement 2 pièces
329 000 €

Contact Mt Agency

Contacter gratuitement à l'aide du formulaire ci-dessous.


Afficher le téléphone


Annonces similaires

Vente appartement

Menton 06500 - 0

360 000 €

...Dans une copropriété de 547 lots...

Voir l'annonce

Vente appartement

Menton 06500 - 0

319 000 €

...Nichée au deuxième et dernier étage, cette propriété sans copropriété ni charges offre un cadre...

Voir l'annonce

Vente appartement

Menton 06500 - 0

295 000 €

...Appartement de 2 pièeces avec une cuisine séparée meublée et équipée avec un balcon, une chambre...

Voir l'annonce

Vente appartement

Menton 06500 - 0

328 600 €

...L'appartement se compose d'une entrée, une cuisine indépendate équipée, deux chambres, un salon...

Voir l'annonce

Vente appartement

Menton 06500 - 0

290 000 €

...Il est situé au 1er étage ( accès par escalier, cet appartement vous séduira par sa belle...

Voir l'annonce