2 pièces de 25m² avec ascenseur - Charonne - Rue Emile Lepeu, Paris 11e
Paris 75011
0
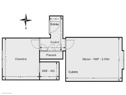
Hosman propose à la vente ce charmant deux pièces traversant de 25m², situé au deuxième étage avec ascenseur d'un immeuble de la rue Emile Lepeu à Paris 11e.
L'appartement se compose comme suit :
- Une entrée sécurisée par une porte renforcée, agrémentée de rangements ;
- Un séjour de 11,63 m², orienté Sud-Est sur rue, avec une cuisine ouverte équipée (plaques vitrocéramiques, four, hotte) avec îlot central doté de rangements.
- Une chambre de 7,43m² orientée Nord-Ouest sur cour au calme ;
- Une salle d'eau accessible depuis la chambre comprenant une douche, un WC, une vasque et un sèche-serviettes.
Le chauffage et l'eau chaude sont électriques.
La taxe foncière annuelle est de 552 €.
Les charges de copropriété s'élèvent à 300 € par trimestre.
Le bien est idéalement situé dans un quartier vivant, avec de nombreux commerces, cafés et restaurants à proximité immédiate. La station de métro Charonne (ligne 9) est à seulement 5 minutes à pied, et les stations Philippe Auguste et Alexandre Dumas (ligne 2) à moins de 10 minutes à pied.
Le bien est soumis au statut de copropriété.
Planifiez facilement votre visite en choisissant le créneau qui vous convient depuis le site d'Hosman.
Hosman s'efforce de réinventer l'agence immobilière en offrant un service innovant et transparent aux acheteurs et aux vendeurs. Nos frais d'agence sont de 7900 euros fixes à la charge du vendeur.
Si vous êtes un professionnel de l'immobilier (agent, mandataire ou chasseur immobilier), sachez que toutes les annonces Hosman sont ouvertes à la collaboration. N'hésitez pas à nous contacter pour en discuter.
25 m²
11 400 €
2
1
1
1
1
2 sur 5
Sud
Est
Oui
Oui
Consommations énergétiques
Logement économe
301
Logement énergivore (kWhEP/m2/an)
Émissions de gaz à effet de serre
Faible émission de GES
9
Forte émission de GES(kgeqCO2/m2/an)
Contact Julie Jaubert
Contacter gratuitement à l'aide du formulaire ci-dessous.