2 Pièces loué vide Rue Mathurin Régnier PARIS 15EME
Paris 75015
0
Les charges de location sont prévisionnelles mensuelles avec régularisation annuelle.
La part des honoraires pour la réalisation de létat des lieux de ce bien est de 156.14 euros.
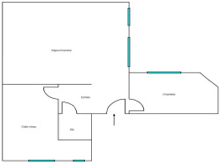
Situé rue Mathurin Régnier, au rez-de-chaussée sur cour d'un bel immeuble, Beau 2 Pièces de 51,53 m2, loué vide et en parfait état, se compose d'une entrée, d'un séjour avec cuisine ouverte aménagée, d'un espace extérieur dans la cour (pour installer des plantes, une table et une chaise), d'une chambre, d'une salle d'eau avec placard et de WC séparés. Chauffage et eau chaude individuels. Le logement se trouve à proximité de la station Volontaires (ligne 12). Disponible immédiatement. Loyer : 1 390 EUR charges comprises. En remplissant le formulaire de contact de l'annonce, vous recevrez un e-mail via CASAP pour fixer un rendez-vous en ligne. DPE : E (214) GES : B (8) Estimation des coûts annuels d'énergie : entre 1 075 EUR et 1 455 EUR. Les informations relatives aux risques auxquels le bien est exposé sont consultables sur le site Géorisques : www.georisques.gouv.fr.
51.53 m²
2
1
1
1
779.65 %
80 € / mois
Oui
1
Oui (60 lots)
Consommations énergétiques
Logement économe
214
Logement énergivore (kWhEP/m2/an)
Émissions de gaz à effet de serre
Faible émission de GES
8
Forte émission de GES(kgeqCO2/m2/an)
Contact GROS
Contacter gratuitement à l'aide du formulaire ci-dessous.