PARIS !
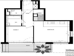
De retour à la vente -> Au 5ème étage et orienté SUD/OUEST, cet appartement 2 pièces de 53m² se compose d'une entrée, d'un séjour avec cuisine ouverte, 1 chambre, une salle de bains et un WC indépendant. Il est aussi convenu avec cet appartement d'un balcon de 11m².
Livraison prévue pour le 3eme trimestre 2025.
Prestations particulièrement soignées, le bâtiment certifié HQE est une habitation durable dont la construction fait très attention aux conséquences sur l'environnement, non seulement la consommation énergétique est réduite mais son environnement devient plus sain et protégé.
Vous profiterez aussi des charges maîtrisées, du prêt à taux zéro.
*Photos de synthèse non contractuelles, exemple d'aménagement possible*
VATRIUM - LÉON Jonathan 06 43 64 07 10
[56]
53 m²
11 868 €
2
1
1
1
5
Sud
Ouest
Oui
Contact LÉON Jonathan
Contacter gratuitement à l'aide du formulaire ci-dessous.