29270 Saint Hernin maison 4 chambres sous sol complet garages sur 3500 m²
Saint-Hernin 29270
0
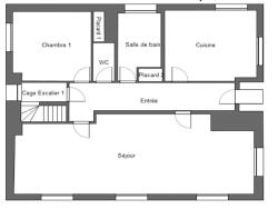
Maison de construction traditionnelle, à rafraichir, 4 chambres dont 1 en Rez-de-chaussée.
Salon séjour de 40 m² avec cheminée.
1 cuisine de 14 m², 2 salles de bain.
Sous sol aménagé avec 2 accès, espace cuisine, bureau, chaufferie et atelier.
Cour bitumée, 2 garages en annexe
Budget : 116 000 euros honoraires à la charge des vendeurs.
Pour visiter et vous accompagner dans votre projet, contactez Philippe BALAC, au 07 60 72 60 23 ou par courriel à p.balac@proprietes-privees.com
Cette présente annonce a été rédigée sous la responsabilité éditoriale de Philippe BALAC agissant sous le statut d'agent commercial immatriculé au RSAC QUIMPER 753373794 auprès de la SAS PROPRIETES PRIVEES, Réseau national immobilier, au capital de 40000 euros, 44 ALLÉE DES CINQ CONTINENTS - ZAC LE CHÊNE FERRÉ, 44120 VERTOU, RCS Nantes n° 487 624 777 00040, Carte professionnelle T et G n° CPI 4401 2016 000 010 388 CCI Nantes-Saint Nazaire. Garantie GALIAN - 89 rue de la Boétie, 75008 Paris
Mandat réf : 3382818 - Le professionnel garantit et sécurise votre projet immobilier.
Frais de 4.99 % forfait minimum de 5990 euros à la charge du vendeur
Consommation énergie primaire F 374 kWh/m2 par an
Gaz Effet de Serre c 36 Kg CO2/m2/an
Les informations sur les risques auxquels ce bien est exposé sont disponibles sur le site Géorisques : www. georisques. gouv. fr
197 m²
589 €
3500 m²
7
4
2
Oui
Consommations énergétiques
Logement économe
374
Logement énergivore (kWhEP/m2/an)
Émissions de gaz à effet de serre
Faible émission de GES
11
Forte émission de GES(kgeqCO2/m2/an)
Contact Philippe BALAC
Contacter gratuitement à l'aide du formulaire ci-dessous.