29520 Châteauneuf du Faou maison avec 4 chambres et salle d'eau récente pas de vis à vis
Châteauneuf-du-Faou 29520
0
Maison très bien entretenue, au calme, sans vis à vis.
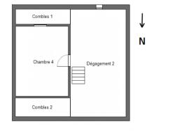
Entrée , salon séjour, 1 cuisine, 1 chambre.
En étage : 3 chambres, 1 salle d'eau récente, 1 wc.
Chauffage mixte, fioul et poêle à bois.
Garage, atelier.
Budget : 123 000 euros honoraires à la charge des vendeurs.
Pour visiter et vous accompagner dans votre projet, contactez Philippe BALAC, au 07 60 72 60 23 ou par courriel à p.balac@proprietes-privees.com
Cette présente annonce a été rédigée sous la responsabilité éditoriale de Philippe BALAC agissant sous le statut d'agent commercial immatriculé au RSAC QUIMPER 753373794 auprès de la SAS PROPRIETES PRIVEES, Réseau national immobilier, au capital de 40000 euros, 44 ALLÉE DES CINQ CONTINENTS - ZAC LE CHÊNE FERRÉ, 44120 VERTOU, RCS Nantes n° 487 624 777 00040, Carte professionnelle T et G n° CPI 4401 2016 000 010 388 CCI Nantes-Saint Nazaire. Garantie GALIAN - 89 rue de la Boétie, 75008 Paris
Mandat réf : 422013 - Le professionnel garantit et sécurise votre projet immobilier.
Honoraires 7.4 % charge vendeur
Consommation énergie primaire F 387 kwh / an
Gaz Effet de Serre F 73 CO2/m2/an
Les informations sur les risques auxquels ce bien est exposé sont disponibles sur le site Géorisques : www. georisques. gouv. fr
95 m²
1 295 €
1244 m²
6
3
1
Oui
Consommations énergétiques
Logement économe
387
Logement énergivore (kWhEP/m2/an)
Émissions de gaz à effet de serre
Faible émission de GES
73
Forte émission de GES(kgeqCO2/m2/an)
Contact Philippe BALAC
Contacter gratuitement à l'aide du formulaire ci-dessous.