29530 Plonévez du Faou maison très bien entretenue 5 chambres sous sol complet 2200 m²
Plonévez-du-Faou 29530
0
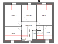
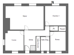
Maison avec 5 chambres dont 2 en Rez-de-chaussée.
Entrée, cuisine, salon-séjour, 2 chambres, salle d'eau, WC
En étage : 3 chambres dont 1 chambre d'enfant / bureau, salle d'eau, WC
Sous sol complet.
Jardin arboré et entretenu sur 2200 m².
Budget : 220 000 euros honoraires à la charge du vendeur.
Pour visiter et vous accompagner dans votre projet, contactez Philippe BALAC, au 0760726023 ou par courriel à p.balac@proprietes-privees.com
Selon l'article L.561.5 du Code Monétaire et Financier, pour l'organisation de la visite, la présentation d'une pièce d'identité vous sera demandée.
Cette vente est garantie 12 mois.
Cette présente annonce a été rédigée sous la responsabilité éditoriale de Philippe BALAC agissant en qualité de conseiller immobilier indépendant sous portage salarial auprès de la SAS PROPRIETES PRIVEES, au capital de 40 000 euros, ZAC LE CHÊNE FERRÉ - 44 ALLÉE DES CINQ CONTINENTS 44120 VERTOU; SIRET 487 624 777 00040, RCS Nantes. Carte professionnelle Transactions sur immeubles et fonds de commerce (T) et Gestion immobilière (G) n° CPI 4401 2016 000 010 388 délivrée par la CCI Nantes - Saint Nazaire.
Consommation énergie primaire D 197 kWh/m2 par an
Gaz Effet de Serre D 45 CO2/m2/an
Mandat réf : 398624 - Le professionnel garantit et sécurise votre projet immobilier.
Les informations sur les risques auxquels ce bien est exposé sont disponibles sur le site Géorisques : www. georisques. gouv. fr
130 m²
1 692 €
2200 m²
8
5
Oui
Consommations énergétiques
Logement économe
197
Logement énergivore (kWhEP/m2/an)
Émissions de gaz à effet de serre
Faible émission de GES
45
Forte émission de GES(kgeqCO2/m2/an)
Contact Philippe BALAC
Contacter gratuitement à l'aide du formulaire ci-dessous.