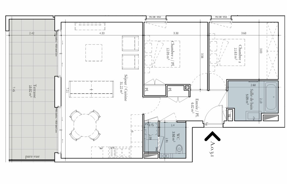
Idéalement placé dans le centre de Saint didier au Mont d'Or, ce T3 de 63m² saura vous séduire par sa pièce à vivre qui s'ouvre sur une belle terrasse. Il est composé d'une entrée, d'un séjour avec cuisine ouverte sur une terrasse de 16.81m². Ensuite, un WC, deux chambres et d'une salle de bain. L'appartement est vendu avec un garage en sous-sol. Pour tout renseignement, vous pouvez me contacter, Je serai ravi d'échanger et vous aider à concrétiser votre beau projet Bâtiment basse consommation, faibles charges Visuel non contractuel Merci de contacter votre conseiller Grégory pour plus d'informations Copropriété de 15 lots - dont 15 lots habitation. (Pas de procédure en cours). Charges annuelles : 1100 euros.