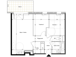
La résidence est située à 400 mètres du centre-ville dans un agréable quartier résidentiel et arboré, proche de tout. Parfaitement connectée au réseau cyclable et aux axes routiers du Grand Chambéry. Ce beau T3 de 64,89m² est composé de 2 chambres, un séjour avec cuisine US ouverte sur une terrasse de 9,47m², un cellier, une salle de bains et un wc séparé. L'appartement est vendu avec une place de parking extérieur et une cave Bâtiment basse consommation, faibles charges Visuel non contractuel Merci de contacter votre conseiller Grégory au O6.69.26.64.26 pour plus d'informations Copropriété de 24 lots - dont 24 lots habitation. Charges annuelles : 1000 euros.