3 pièces avec balcon - Bord des champs - Truchtersheim
Truchtersheim 67370
0
Honoraires à la charge du vendeur.
OUARTIMMO vous propose à la vente ce superbe appartement 3 pièces avec balcon, situé au 1er étage d'une résidence moderne, sans vis-à-vis et offrant une vue dégagée sur les champs.
Nichée au coeur de la campagne alsacienne, la commune de Truchtersheim séduit par son cadre de vie privilégié, alliant tranquillité, charme et confort moderne.
Ce village dynamique est particulièrement apprécié pour son environnement verdoyant et apaisant, idéal pour les familles comme pour celles et ceux qui souhaitent profiter d'un quotidien serein.
À seulement quelques minutes de Strasbourg et parfaitement desservie par les principaux axes routiers, la commune permet de bénéficier de toutes les commodités tout en conservant l'esprit convivial et authentique d'un village.
Un emplacement privilégié où qualité de vie et praticité se rencontrent.
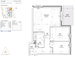
Agencement : Surface habitable de 67,6 m2 3 pièces / 2 chambres avec parquet stratifié Salle de bains carrelée et équipée WC suspendu Belle pièce de vie lumineuse avec cuisine ouverte Peinture lisse sur les murs Balcon de 7,7 m2 offrant une vue dégagée sur les champs
Informations complémentaires : 1 place de stationnement extérieure 1 place de stationnement en sous-sol Chauffage au sol Chaudière collective au gaz Volets roulants motorisés Ascenseur Local vélo fermé Résidence sécurisée Construction répondant aux dernières normes énergétiques et acoustiques
Prix : 294 754 EUR FAI (Honoraires à la charge du vendeur)
Pour plus de renseignements, contactez sans hésiter : Caroline HERREL O7 63 92 57 4O
OUARTIMMO Au départ de vos projets !
Les informations sur les risques auxquels ce bien est exposé sont disponibles sur le site : www.georisques.gouv.fr Copropriété 16 lots : pas de procédure en cours.
67.6 m²
4 360 €
7 m²
3
2
1
1
1 sur 3
2026
1 (7 m²)
Oui
2
Oui
Oui
Oui
Oui
Consommations énergétiques
Logement économe
79
Logement énergivore (kWhEP/m2/an)
Émissions de gaz à effet de serre
Faible émission de GES
7
Forte émission de GES(kgeqCO2/m2/an)
Contact
Contacter gratuitement à l'aide du formulaire ci-dessous.