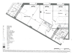
EXCLUSIVITÉ MyTotem ! Venez découvrir et/ou à investir dans ce magnifique 3 pièces de 59.4m2 , idéalement situé avenue du Président Allende à Villejuif dans un immeuble de standing. Séjour/Cuisine Lumineux de 24m2 : Un espace de vie convivial et ouvert, baigné de lumière naturelle. Il donne directement sur la loggia. Loggia Privative de 4.2m2 : Prolongez votre séjour en extérieur avec une vue dégagée sur les environs. 2 Chambres Confortables (11.7m2 et 9.3m2) Salle de Bain Fonctionnelle (5.6m2) Entrée avec Dégagement et Rangement : Un agencement intelligent dès l'arrivée, avec la possibilité d'aménager des rangements. Prestations de Qualité : Double vitrage, et conforme à la norme Bâtiment Basse Consommation (BBC) garantissant une isolation thermique et phonique supérieure et des dépenses énergétiques maîtrisées (DPE optimal assuré). Parking Inclus Une Localisation Stratégique, Connectée à Paris Vivre au 'VERY COSY', c'est choisir l'efficacité urbaine et la qualité de vie : À quelques minutes de Paris : Profitez de la proximité immédiate de la capitale (Porte d'Italie) tout en bénéficiant d'un cadre de vie agréable et de prix plus accessibles. Transports en Commun à Portée de Main : Accès rapide et direct au Métro Ligne 14 (station Villejuif Gustave Roussy) et à un réseau de bus performant. Vos trajets vers Paris, l'aéroport d'Orly, le Kremlin-Bicêtre ou les pôles d'activité du sud parisien sont simplifiés.Quartier Dynamique et Pratique : Commerces, services, écoles, parcs.. tout est à proximité pour un quotidien facilité. L'Élégance et le Confort : Appartement Lot 12 - R+1 Ce T3, situé au 1er étage (R+1 sur le plan pour l'étage), offre une configuration pensée pour le bien-être et la fonctionnalité :
60 m²
5 417 €
4 m²
24 m²
3
2
1
3 sur 7
01/04/2026
2025
Sud
Nord
1 (4 m²)
Oui
1
Oui
Oui (53 lots)
Contact SADEGHI
Contacter gratuitement à l'aide du formulaire ci-dessous.