3 pièces avec grande pièce de vie en parfait état - Faidherbe-Chaligny - Marché d'Aligre, Paris
Paris 75012
0
Hosman vous propose ce spacieux appartement de 67,21 m² Carrez, idéalement situé à
quelques minutes du square Trousseau, du marché d"Aligre et de Bastille. Le bien est situé au 2ème étage d'un immeuble ancien bien entretenu, cet appartement traversant et lumineux a été entièrement rénové avec des matériaux de qualité.
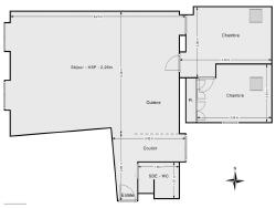
L'appartement se compose comme suit :
- Une grande pièce de vie de 42,83 m² avec deux grandes fenêtres, et une cuisine ouverte entièrement équipée (frigo, congélateur, cave à vin, plaques à induction et lave-vaisselle) ;
- Deux chambres sur cour en enfilade, dont une chambre de 10,56 m² avec velux, et une seconde chambre de 8 m² avec rangement encastré orientée ouest. Il est possible de les séparer facilement avec l'ajout d'une cloison ;
- Une salle d'eau moderne.
Le système de chauffage est électrique, avec un ballon d'eau chaude.
La taxe foncière annuelle est de 1 026 €.
Les charges de copropriété s'élèvent à 210 € par mois.
L'appartement se situe dans un quartier attractif du 12ème arrondissement de Paris, à la limite du 11ème et à proximité immédiate de nombreux commerces, cafés et restaurants. Vous trouverez à quelques minutes à pied le square Trousseau, le Marché d'Aligre et la coulée verte. L'appartement est situé à seulement quelques pas de la station de métro Faidherbe-Chaligny (ligne 8), à 500 mètres de la station Reuilly-Diderot (ligne 1) et à moins d'un quart d'heure à pied de la Gare de Lyon (RER A, lignes 1 et 14).
Le bien est soumis au statut de copropriété.
Planifiez facilement votre visite en choisissant le créneau qui vous convient depuis le site d'Hosman.
Hosman s'efforce de réinventer l'agence immobilière en offrant un service innovant et transparent aux acheteurs et aux vendeurs. Nos frais d'agence sont de 18 900 euros fixes à la charge du vendeur.
Si vous êtes un professionnel de l'immobilier (agent, mandataire ou chasseur immobilier), sachez que toutes les annonces Hosman sont ouvertes à la collaboration. N'hésitez pas à nous contacter pour en discuter.
67 m²
9 627 €
3
2
1
1
1
2 sur 5
Nord
Oui
Oui
Consommations énergétiques
Logement économe
243
Logement énergivore (kWhEP/m2/an)
Émissions de gaz à effet de serre
Faible émission de GES
8
Forte émission de GES(kgeqCO2/m2/an)
Contact Claire Gervais
Contacter gratuitement à l'aide du formulaire ci-dessous.