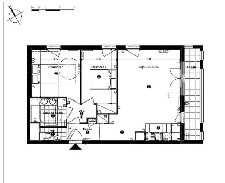
Nous vous proposons ce magnifique appartement de 3 pièces, idéalement situé au 2ème étage d'une résidence de standing. D'une SURFACE PRIVATIVE de 75m², cet appartement vous séduira par ses prestations de qualité et son agencement optimisé. Ce bien spacieux et lumineux est idéal pour une famille ou pour ceux en quête de confort.
Pour votre confort, 1 emplacement de stationnement privatif est inclus.
Cet appartement est orienté à l'Est, vous garantissant une belle lumière naturelle dès le matin. Vous apprécierez également un balcon de 7m², parfait pour vos petits-déjeuners en plein-air ou pour recevoir vos invités.
** La livraison de ce bien est prévue pour le 4eme trimestre 2026 **
Ne manquez pas cette opportunité unique d'acquérir un appartement alliant confort, modernité et fonctionnalité.
Pas de frais d'agence, Certifié BBC, norme RT2012 / RE2020, haute qualité environnementale et éligible au prêt à taux 0.
*Photos de synthèse non contractuelles.* Pour plus d'informations ou pour organiser une visite, n'hésitez pas à nous contacter dès maintenant !
LÉON Anthony - VATRIUM 07 43 39 85 59
[14]
68 m²
7 397 €
3
2
1
2
Oui
Contact Sacha SITBON
Contacter gratuitement à l'aide du formulaire ci-dessous.