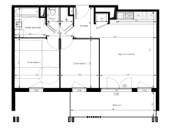
La résidence se situe à deux pas des transports en commun et des premières commodités, parfaitement connectée au réseau cyclable et aux axes routiers du Grand Chambéry. Ce beau T3 de 62,73m² est composé de 2 chambres, un séjour avec cuisine US ouverte sur une terrasse de 12,15m², une salle de bains et un wc séparé. L'appartement est vendu avec 2 places de parking extérieur Bâtiment basse consommation, faibles charges Visuel non contractuel Merci de contacter votre conseiller Grégory au O6.69.26.64.26 pour plus d'informations Copropriété de 48 lots - dont 48 lots habitation. Charges annuelles : 1000 euros.