Honoraires à la charge de l'acquéreur (Prix hors honoraires : 262000 euros).
Un appartement neuf, élégant et lumineux, situé dans un environnement calme et verdoyant, à deux pas du centre-ville de Plaisir. Ce bien rare offre un cadre de vie privilégié au sein d'une résidence à l'architecture soignée, inspirée des maisons de ville traditionnelles, mêlant pierre, brique et enduit clair.
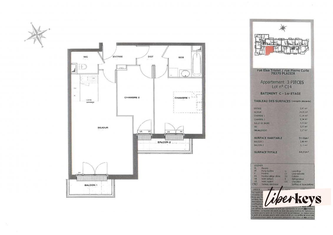
Les + du bien : Séjour lumineux avec cuisine ouverte donnant sur un balcon privatif Deux chambres bien agencées Salle d'eau, WC séparé et rangements intégrés Volumes optimisés et belle hauteur sous plafond Prestations de qualité : revêtement parqueté, carrelage contemporain, sèche-serviette, volets roulants, menuiseries aluminium
Atouts et confort de vie : Architecture harmonieuse alliant charme classique et touches contemporaines Résidence entourée de jardins paysagers et d'allées arborées Environnement calme et résidentiel à proximité immédiate des commodités Bâtiment RE 2020 BBC (Bâtiment Basse Consommation)
Commodités à proximité : Gare de Plaisir-Grignon à 5 minutes (liaison directe vers Paris-Montparnasse en 25 min) Écoles, commerces et marché couvert à proximité immédiate Parc du Château de Plaisir et forêt de Sainte-Apolline accessibles à pied Accès rapide à la N12, à l'A12 et à Versailles
Mention : Faibles charges RE 2020 Bâtiment BBC Pas de frais d'agence.
Bien disponible sur demande Joignable 7j/7
Photos non contractuelles, destinées à exprimer une intention architecturale.
Honoraires à la charge du vendeur. Non soumis au DPE. Les informations sur les risques auxquels ce bien est exposé sont disponibles sur le site Géorisques.
Monsieur HODGE | +33 (0)6.69.39.25.69
Non soumis au DPE. Les informations sur les risques auxquels ce bien est exposé sont disponibles sur le site Géorisques : georisques.gouv.fr.
Votre conseiller BETHEL CAPITAL : Thomas Hodge Agent commercial (Entreprise individuelle)
55 m²
4 764 €
3
2
1
1 (séparé)
3 sur 3
Sud
1
Oui
1
Oui
Oui
Oui
Contact Thomas Hodge
Contacter gratuitement à l'aide du formulaire ci-dessous.