Les charges de location sont prévisionnelles mensuelles avec régularisation annuelle.
La part des honoraires pour la réalisation de létat des lieux de ce bien est de 209.1 euros.
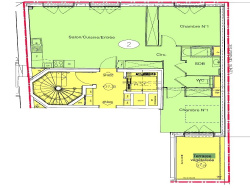
Superbe appartement refait à neuf situé au 1er étage avec ascenseur, il se compose d'une entrée sur un vaste séjour avec une cuisine ouverte et intégralement équipée, de 2 chambres avec rangements, dont une donnant sur un toit-terrasse (appartenant à la copropriété) d'une salle de bains, d'un WC indépendant. Local vélo sur cour. Appartement offrant tout le confort et les avantages du neuf. Accessible PMR. Loyer mensuel : 2000 EUR hors charge - Charges mensuelles : 150 EUR - Dépôt de garantie (1 mois HC) : 2 000 EUR . Si bail code civil, conditions exclues des champs d'application de la loi du 6 juillet 1989. Voir barème agence. PAS DE COLLOCATION - Contact pour visite : AXIMMO Paris 9
69.7 m²
32 m²
3
2
1
1
1 sur 8
1045.5 %
150 € / mois
2022
Sud
Nord
Oui
Oui
Consommations énergétiques
Logement économe
79
Logement énergivore (kWhEP/m2/an)
Émissions de gaz à effet de serre
Faible émission de GES
16
Forte émission de GES(kgeqCO2/m2/an)
Contact
Contacter gratuitement à l'aide du formulaire ci-dessous.