300m plage de la Vicomté, Dans un parc classé, Maison T5 avec
Dinard 35800
0
Honoraires à la charge de l'acquéreur (Prix hors honoraires : 499000 euros).
L'agence 'MON BIEN A LA MER', spécialiste de l'immobilier neuf bords de Mer, vous présente :
Dans un Parc boisé classé, à 300m de la plage de la Vicomté, petite résidence standing. Maison livrée et visitable.Frais de notaire réduits.
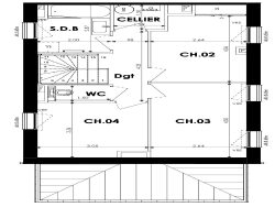
Maison mitoyenne d'un côté, séjour 30m2, 4 chambres dont une chambre au rez de chaussée, salle d'eau, salle de bains, 2 wc, cellier. Garage, parking, annexe, cour, terrasse. + jardin 194m2 Frais de notaire réduits
Nous consulter
Non soumis au DPE. Les informations sur les risques auxquels ce bien est exposé sont disponibles sur le site Géorisques : georisques.gouv.fr.
Votre conseiller MON BIEN A LA MER : Gérant - .fr MON BIEN A LA MER Carte T CPI 2201 2018 000 025 040 RCP ACM IARD B1 7025278
Maison contemporaine
100.9 m²
4 945 €
5
4
1
1
2 (séparés)
2
1
Contact mon bien à la mer
Contacter gratuitement à l'aide du formulaire ci-dessous.