Honoraires à la charge de l'acquéreur (Prix hors honoraires : 140000 euros).
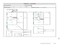
eXpFrance Realty France, le plus grand réseau immobilier inter-connecté au monde, vous propose cette grande longère à 12 min de Créon et 35 km de Bordeaux Bouliac. Profitez du calme à la campagne avec un accès rapide aux axes principaux. Idéal pour une famille ou un entrepreneur pour créer une grande propriété sur mesure. Une longère saine offrant 170 m² habitables actuels auxquels s'ajoutent 170 m² de dépendances attenantes (caves, chais et greniers) soit 340 m² de potentiel total à développer. COMPOSITION ACTUELLE : deux grandes pièces de vie de plus de 70 m² chacune (avec cheminées), salle d'eau, WC, à l'étage trois chambres lumineuses, bureau et annexe. Le tout sur une parcelle verdoyante de 1 299 m² avec garage et puits. TRAVAUX À PRÉVOIR (VOTRE ENVELOPPE CRÉATIVE) : PROJET À RÉNOVER : Le prix bas est justifié par la rénovation totale à prévoir (isolation, chauffage, second oeuvre). La propriété est saine et vous offre une base idéale pour votre projet. Ce bien est le point de départ d'une immense propriété de caractère. Possibilité de division en plusieurs appartements. Contactez-moi pour toute demande d'information et pour organiser votre visite.
Honoraires inclus de 5.71% TTC à la charge de l'acquéreur. Prix hors honoraires 140 000 . Classe énergie E, Classe climat B Montant estimé des dépenses annuelles d'énergie pour un usage standard : entre 2283.00 et 3091.00 sur les années 2021, 2022 et 2023 (abonnements compris). Les informations sur les risques auxquels ce bien est exposé sont disponibles sur le site Géorisques : georisques.gouv.fr.