3ème et dernier étage F2 de 42.56 m² avec parking en sous
Villiers-sur-Marne 94350
0
Honoraires à la charge du vendeur.
EXCLUSIVITE Agence IMMO-E
*Dans un secteur avec toutes commodités (transports / commerces/ accès A4 simple) nous vous proposons cet appartement de Type F2 dans une copropriété sous garantie décennale de 2018, au 3ème et dernier étage avec ascenseur.
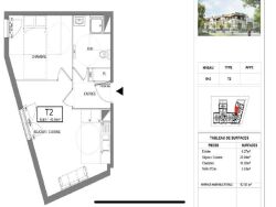
*Agencement suivant : -Surface du bien : 42.56 m² -Entrée avec placard 4.27 m² -Salle d'eau avec WC : 5.43 m² -Salon / Séjour / Cuisine :20.94 m² -Chambre : 11.92 m²
*Bon état général, espace de vie et chambre coté jardin au calme, copropriété sécurisée 'Vigik X2 + digicode', ascenseur, local vélos /poussettes, place de parking en sous-sol.
*Ideal 1er achat et investissement locatif : 'possibilité de rentabilité +5% avec Loyer de 900 €'.
*Charges mensuelles de 152 € environ comprenant chauffage central au gaz / eau chaude / entretien copropriété + ascenseur...
*Pour plus renseignements contactez nous.
*Vidéo immersive et rétrospective du bien en ligne
*PRIX 199 000 € honoraires charge vendeur barème
. Les informations sur les risques auxquels ce bien est exposé sont disponibles sur le site Géorisques : www.georisques.gouv.fr
42 m²
4 738 €
21 m²
2
1
1
3
Oui
1
Oui
Oui
Consommations énergétiques
Logement économe
190
Logement énergivore (kWhEP/m2/an)
Émissions de gaz à effet de serre
Faible émission de GES
15
Forte émission de GES(kgeqCO2/m2/an)
Contact Julien NGUYEN-THE - IMMO E
Contacter gratuitement à l'aide du formulaire ci-dessous.