Les charges de location sont prévisionnelles mensuelles avec régularisation annuelle.
La part des honoraires pour la réalisation de létat des lieux de ce bien est de 201 euros.
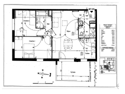
3 pièces au calme de 66.73m2 situé en rez de jardin. Rue Alfred Thimmesch. Il se compose d'un hall d'entrée avec penderie, d'un salon/salle à manger ouvert sur une cuisine équipée (meubles hauts et bas, évier, plaques de cuisson vitrocéramique, four, hotte, emplacement lave-vaisselle) d'une surface d'environ 29m2 , de deux chambres (14,24 m2 et 10,54 m2), d'un wc séparé avec lave-mains, d'une salle de bains (baignoire, meuble sous-évier, miroir, luminaire, sèche-serviette, emplacement lave-linge) de 4,60 m2, d'une terrasse de 12.60m2 avec jardin privatif d'environ 100m2. Un garage fermé complète la location. Chauffage et eau chaude individuel au gaz à condensation. DPE C. Disponible à partir du 15/02/2026. Pour tout renseignement et/ou demande de visite : contactez Coralie Rickert au 07.63.89.67.67. Loyer hors charges : 912,00 EUR /mois + provision sur charges : 90,00 EUR /mois (Eau froide avec sous compteur, charges locatives immeuble, taxe d'ordures ménagères) avec régularisation annuelle. Soit un loyer charges comprises de 1002,00 EUR/mois. Dépôt de garantie : 912,00 EUR. Honoraires de location : 874,00 EUR dont 201,00 EUR de frais d'état des lieux. Le montant des dépenses annuelles d'énergie pour un usage standard de l'ensemble des usages énumérés dans le diagnostic de performance énergétique (chauffage, refroidissement, production d'eau chaude sanitaire, éclairage et auxiliaires de chauffage, de refroidissement, d'eau chaude sanitaire et de ventilation) mentionné à l'article L. 126-26 du code de la construction et de l'habitation est estimé entre 830 EUR et 1170 EUR (estimation réalisée à partir des prix énergétiques de référence de l'année : 2021). Le montant des charges récupérables était de 881,91 EUR pour la période de 01/04/2024 au 31/03/2025. Les informations sur les risques auxquels ce bien est exposé sont disponibles sur le site Géorisques : www.georisques.gouv.fr .
66.73 m²
3
2
1
874 %
15/02/2026
90 € / mois
2011
Oui
1
1
Oui (100 lots)
Consommations énergétiques
Logement économe
152
Logement énergivore (kWhEP/m2/an)
Émissions de gaz à effet de serre
Faible émission de GES
29
Forte émission de GES(kgeqCO2/m2/an)
Contact Céline GOETZ
Contacter gratuitement à l'aide du formulaire ci-dessous.