Situé à 2 pas de la faculté Saint Jean d'Angely et à 5 minutes du Port de Nice, dans un immeuble neuf idéalement placé dans une petite rue tranquille.
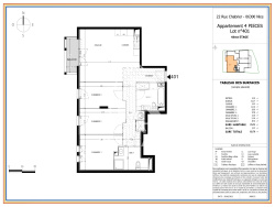
4 Pièces d'une superficie de 79,73 m2 exposé ouest composé, d'un beau séjour de 26 m2 avec une cuisine ouverte donnant sur un balcon, de 3 chambres, d'une salle de bain avec wc et d'une salle d'eau avec wc. ( Plans sur demande ).
L'appartement sera livré équipé du double vitrage, de volets roulants électriques et d'un ballon d'eau chaude thermodynamique.
Logement basse consommation, construit aux normes RT 2012.
Frais de notaire réduits et éligible prêt à taux 0% sous conditions.
Possibilité d'acquérir un stationnement en sous-sol de la résidence.
Situé à proximité immédiate des commodités, transports ( Tramway, Gare de Riquier et Bus ), commerces et établissements scolaires.
D'autres bien disponibles dans la résidence, nous consulter.
Charges annuelles NC.
Copropriété composée de 48 lots.
OFFRE EXCEPTIONNELLE !!! Bénéficiez d'une REMISE de 12 000 EUR + Frais de Notaire OFFERTS !!!
79.73 m²
5 481 €
2 m²
26 m²
4
3
1
1
2
4 sur 6
Ouest
1 (2 m²)
Oui
Oui
Oui (48 lots)
Contact Immobiliere Roseland - Agence Nice Est
Contacter gratuitement à l'aide du formulaire ci-dessous.