Situé à 2 pas de la faculté Saint Jean d'Angely et à 5 minutes du Port de Nice, dans un immeuble idéalement placé dans une petite rue tranquille.
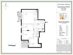
4 Pièces d'une superficie de 72,66 m2 en avant dernier étage exposé ouest composé, d'un beau séjour de 26 m2 avec une cuisine ouverte donnant sur un balcon, de 3 chambres dont une avec un accés sur une terrasse, d'une salle de bain avec douche à l'italienne, et un wc indépendnant.
L'appartement est équipé du double vitrage, de volets roulants électriques et d'un ballon d'eau chaude thermodynamique.
Logement basse consommation, construit aux normes RT 2012.
Possibilité d'acquérir un stationnement en sous-sol de la résidence.
Situé à proximité immédiate des commodités, transports ( Tramway, Gare de Riquier et Bus ), commerces et établissements scolaires.
Charges annuelles NC.
Copropriété composée de 48 lots.
72.66 m²
6 524 €
2 m²
26 m²
4
3
1
1
5 sur 6
Ouest
1 (2 m²)
Oui
1
Oui
Oui (48 lots)
Contact Immobiliere Roseland - Agence Nice Est
Contacter gratuitement à l'aide du formulaire ci-dessous.