INSPIRIMMO Exclusivité Appartement 4 pièces de standing 81 m² avec balcon et vue dégagée Merci de bien lire l'ensemble des informations ci-dessous avant de nous contacter. Si l'annonce est en ligne, le bien est disponible.
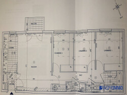
Situé au 1?? étage d'une résidence de standing récente, cet appartement de 81 m² allie confort moderne, calme et qualité de vie. Parfaitement agencé, avec un environnement paisible et la proximité des commodités.
L'entrée s'ouvre sur un séjour lumineux de 25 m², exposée plein sud, offrant un accès direct à un balcon avec une vue dégagée sur un espace arboré. Les menuiseries en PVC double vitrage garantissent un confort thermique et acoustique optimal.
La cuisine, indépendante, est aménagée et équipée.
L'espace nuit comprend trois chambres confortables disposant toutes de placards aménagés, une salle de bains, une salle d'eau, ainsi qu'un WC indépendant.
Le chauffage individuel électrique , l'ascenseur, une place de parking en sous-sol et un box fermé de 12 m² viennent compléter les prestations de ce bien en excellent état.
Environnement recherché : écoles, crèches, médecins, commerces, restaurants et espaces verts accessibles à pied. Une opportunité rare sur le secteur.
DPE C - Taxe foncière 1750 - charges de copro : 175 mois (entretiens, eau et ascenseur) - chauffage individuel électrique avec programmation. Pas de procédures en cours.
Contactez INSPIRIMMO pour organiser une visite de ce bien aux prestations soignées.
Honoraires à la charge du vendeur. Dans une copropriété de 60 lots. Quote-part moyenne du budget prévisionnel 2 099 /an. Aucune procédure n'est en cours. Classe énergie C, Classe climat A Montant estimé des dépenses annuelles d'énergie pour un usage standard : entre 730.00 et 1050.00 sur les années 2021, 2022 et 2023 (abonnements compris). Les informations sur les risques auxquels ce bien est exposé sont disponibles sur le site Géorisques : georisques.gouv.fr. . Vous trouverez plus d'informations directement sur notre site internet.