4 pièces avec Balcon - Saint-Mandé, Proche Bois de Vincennes
Saint-Mandé 94160
0
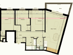
Découvrez un havre de paix à deux pas de Paris, au coeur de Saint-Mandé, dans une résidence élégante et sécurisée, bel appartement de 4 Pièces de 79m2. Ce bien se compose d'un séjour/cuisine de 27m2 donnant sur le balcon de 8m2. Coin nuit 3 chambres dont une avec dressing intégré, - Salle de bain moderne et WC séparé - Parking sécurisé en sous-sol et résidence fermée. Dèrnières normes énergétiques RE 2020 , isolation phonique renforcée, double vitrage, volets électriques, parquet au sol. Idéalement situé à 500 m du Bois de Vincennes, des commodités, écoles et crèche, transports, Métro ligne 1 et 8, bus, tram T3, accès rapide à la gare de Lyon Lac Daumesnil et Parc Zoologique de Paris Pas de frais d'agence - Frais de notaires réduits - Photo non-contractuelles
79 m²
10 013 €
8 m²
4
3
1
1
4
1 (8 m²)
Consommations énergétiques
Logement économe
71
Logement énergivore (kWhEP/m2/an)
Émissions de gaz à effet de serre
Faible émission de GES
10
Forte émission de GES(kgeqCO2/m2/an)
Contact AMAR Denis
Contacter gratuitement à l'aide du formulaire ci-dessous.