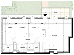
La résidence est située à 400 mètres du centre-ville dans un agréable quartier résidentiel et arboré, proche de tout. Parfaitement connectée au réseau cyclable et aux axes routiers du Grand Chambéry. Ce beau T4 de 91,89m² est composé de 3 chambres, un séjour avec cuisine US ouverte sur une terrasse de 12m², un jardin de 111m², une salle de bains, une salle d'eau, un cellier et un wc séparé. L'appartement est vendu avec un garge et une cave Bâtiment basse consommation, faibles charges Visuel non contractuel Merci de contacter votre conseiller Grégory au O6.69.26.64.26 pour plus d'informations Copropriété de 24 lots - dont 24 lots habitation. Charges annuelles : 1800 euros.