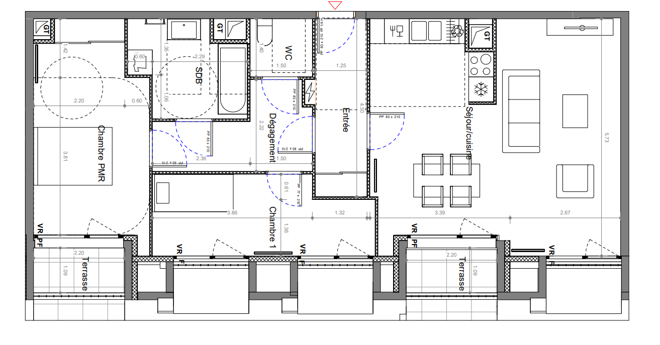
Beau 4 pièces très bien agencé, terrasse plein sud de 8.5m2 La pièce de vie ouvre directement sur la terrasse plein sud, Les 3 chambres de 12,11 et 10m2 sont bien séparées de l'espace de vie, et pour plus de confort, 2 salles de bains et 2 toilettes viennent compléter cette offre. Volets roulant électrique dans toutes les pièces. Cet appartement se situe au 4 eme etage d'un immeuble de 5 étage, profitez du Marché 2 fois par semaines au pied de l'immeuble. Le centre ville est à 2 mn à pied pour flaner dans les nombreux commerces, le chateau et l'église sont également à proximité immédiate de votre appartement. La gare RER A SUCY est à 15mn à pied. Une place de parking securisé en sous sol est compris dans le prix. Les informations sur les risques auxquels ce bien est exposé sont disponibles sur le site Géorisques : www.georisques.gouv.fr Pour toutes questions veuillez me contacter au 06 63 08 94 49 ou par email c.domingues@parlonsimmo.io
79 m²
6 114 €
4
3
1
1
2
4 sur 4
2024
Sud
Oui
1
Oui
1
Oui
Contact DOMINGUES Céline
Contacter gratuitement à l'aide du formulaire ci-dessous.