Honoraires à la charge de l'acquéreur (Prix hors honoraires : 1240000 euros).
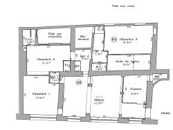
Découvrez cet appartement T4 de 111,40 m², situé au premier étage d'un immeuble ancien ravalé. Il combine le charme de l'ancien avec un bon niveau de confort et un agencement fonctionnel, avec une double exposition Sud-Nord. Le bien dispose d'un séjour agréable de 33 m², avec 3 fenêtres en double-vitrage, orienté sud-ouest, donnant sur une rue calme, à sens unique. La cuisine américaine, aménagée et équipée, constitue un atout pour ceux qui recherchent un espace pratique et convivial, idéal pour recevoir.Il comprend également trois chambres, dont 2 sur cour, très calme, une salle de bains, une salle d'eau, ainsi que deux WC, dont un séparé. + Une grand cave (6 m²), bien pratique. L'état intérieur et les parties communes sont en bon état général, la copropriété est entretenue et très bien gérée, sans gros travaux importants à prévoir à court terme (ravalement et autres déja faits!). L'emplacement offre une vie de quartier agréable, avec des écoles, commerces, restaurants, parcs et jardins accessibles à pied (M° Temple et République à 2 mn,, Square du Temple, le Marais, la rue de Bretagne, etc...) .
Honoraires inclus de 4.03% TTC à la charge de l'acquéreur. Prix hors honoraires 1 240 000 . Dans une copropriété de 40 lots. Quote-part moyenne du budget prévisionnel 2 648 /an. Aucune procédure n'est en cours. Classe énergie E, Classe climat B Montant estimé des dépenses annuelles d'énergie pour un usage standard : entre 2750.00 et 3750.00 sur les années 2021, 2022 et 2023 (abonnements compris). Les informations sur les risques auxquels ce bien est exposé sont disponibles sur le site Géorisques : georisques.gouv.fr.
Votre conseiller Loft App'Art & Co : Fondateur - Viet Nam HOANG Carte T CPI75012021000000813 RCP 500643218
111.4 m²
11 580 €
33 m²
4
3
1
1
2 (séparés)
1 sur 6
4.03 %
220.00 € / mois
Sud
Ouest
Oui
Oui (40 lots)
Consommations énergétiques
Logement économe
327
Logement énergivore (kWhEP/m2/an)
Émissions de gaz à effet de serre
Faible émission de GES
10
Forte émission de GES(kgeqCO2/m2/an)
Contact Hoang VIET NAM HOANG
Contacter gratuitement à l'aide du formulaire ci-dessous.