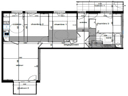
Appartement familial de 80 m2 Écoquartier dynamique aux portes de Paris Découvrez ce spacieux appartement de 80 m2, idéal pour une famille, situé dans un écoquartier en pleine essor, à deux pas des quais de Seine. Alliant confort, modernité et accessibilité, ce bien est conçu pour répondre aux attentes des familles en quête d'un cadre de vie agréable et connecté. - Séjour lumineux de 21,43 m2 : Un espace de vie généreux et lumineux - 3 chambres (12 m2, 11 m2 et 9,37 m2) : Des espaces adaptés pour les enfants, les invités ou un bureau. - 2 balcons (7,09 m2 et 4,26 m2) - Cuisine séparée : Pratique et fonctionnelle, idéale pour les repas en famille. - 1 parking intérieur complète ce bien Un cadre de vie exceptionnel : Quartier neuf et bien desservi : Proximité immédiate des transports en commun (RER C, ligne 15 du Grand Paris Express, TZEN5) pour des trajets simplifiés. Environnement verdoyant : Un écoquartier pensé pour le bien-être, avec des espaces verts et une ambiance paisible. Pas de frais d'agence - Frais de Notaire réduits - Photos non contractuelles
80 m²
5 288 €
11 m²
4
3
1
5
2 (11 m²)
1
Oui (223 lots)
Consommations énergétiques
Logement économe
71
Logement énergivore (kWhEP/m2/an)
Émissions de gaz à effet de serre
Faible émission de GES
10
Forte émission de GES(kgeqCO2/m2/an)
Contact AMAR Denis
Contacter gratuitement à l'aide du formulaire ci-dessous.