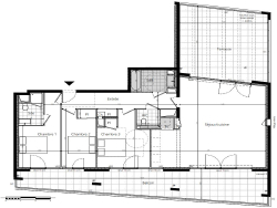
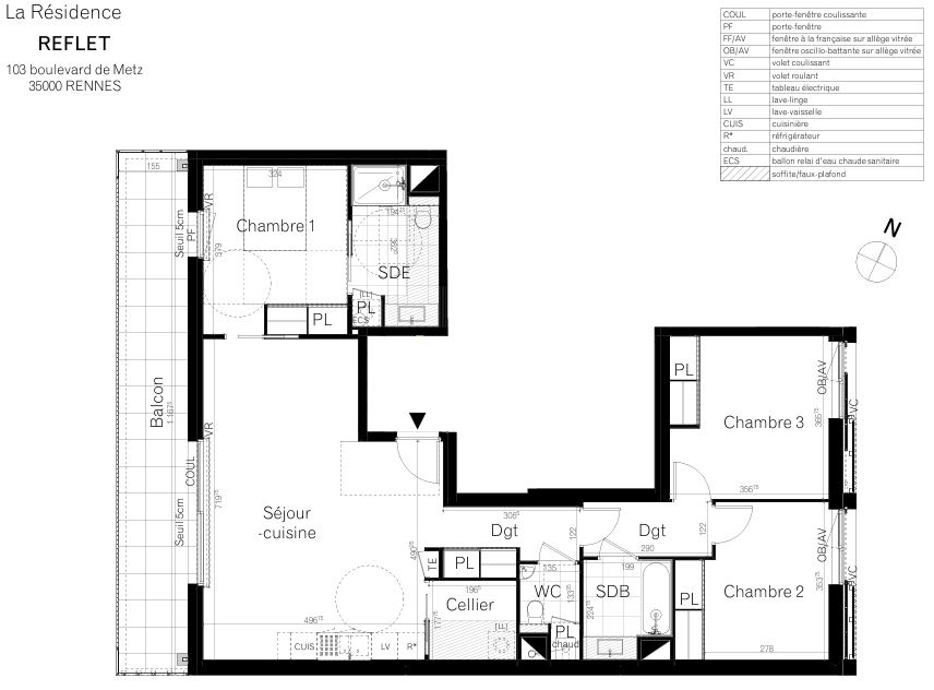
Un appartement neuf, élégant et familial, situé en étage élevé au coeur du centre-ville rennais, dans le très recherché quartier des Lices. Ce bien offre un cadre de vie rare, alliant architecture contemporaine, confort moderne et proximité immédiate de l'hyper-centre historique. Les + du bien : Séjour spacieux et lumineux avec cuisine ouverte, prolongé par une grande terrasse Loggia indépendante, accessible depuis la suite parentale Trois chambres confortables, dont une suite parentale avec salle d'eau privative Salle de bains et salle d'eau séparées, idéales pour la vie de famille WC séparé Entrée avec dégagement optimisant la circulation Rangements intégrés Plan fluide et parfaitement équilibré Prestations haut de gamme : parquet en bâtons rompus dans les pièces de vie, carrelage et faïence soignés dans les pièces humides, sèche-serviette Volets roulants et menuiseries performantes Résidence sécurisée avec ascenseur et accès contrôlé Accès à un parking sécurisé en sous-sol Atouts et confort de vie : Architecture urbaine élégante, mêlant pierre, volumes découpés et lignes contemporaines Appartement bénéficiant d'une excellente luminosité naturelle grâce aux larges ouvertures Terrasse et loggia offrant de véritables prolongements extérieurs en coeur de ville Résidence à taille humaine, aux parties communes soignées Conception conforme aux standards environnementaux actuels, garantissant confort thermique et qualité de vie durable Commodités à proximité : Métro lignes A et B Sainte-Anne / Anatole France accessibles à pied Arrêts de bus à proximité immédiate Place des Lices et son marché emblématique à quelques minutes Commerces, restaurants, services et vie culturelle du centre-ville accessibles à pied Crèches et écoles maternelles / élémentaires à proximité (réputation bonne) Collèges et lycées accessibles facilement (réputation favorable) Parc du Thabor, berges de la Vilaine et espaces verts à proximité Accès rapide à la rocade et à la gare de Rennes Mention : Faibles charges Bâtiment BBC Pas de frais d'agence Bien disponible sur demande Joignable 7j/7 Photos non contractuelles, destinées à exprimer une intention architecturale. Honoraires à la charge du vendeur. Non soumis au DPE. Les informations sur les risques auxquels ce bien est exposé sont disponibles sur le site Géorisques. Yoram Fargeon | +33 (0)6 01 15 50 43
Honoraires à la charge du vendeur. Non soumis au DPE. Les informations sur les risques auxquels ce bien est exposé sont disponibles sur le site Géorisques : georisques.gouv.fr.