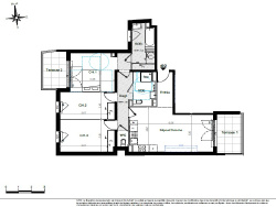
Lot 402 - 4 Pièces 4ème étage - Superficie 82.30m2 - Terrasse 1 : 6.70m2 - Terrasse 2 : 6.30m2
Date de livraison* : 4ÈME TRIMESTRE 2026
LES PRESTATIONS ONT ETE DEFINIES POUR REPONDRE AUX EXIGENCES DE LA REGLEMENTATION THERMIQUE RE2020 ET A LA CERTIFICATION NF HABITAT HQE.
Vie pratique
VIVRE DANS LA CAPITALE DE LA COTE D'AZUR. Bâtie autour de l'une des plus belles baies du monde, Nice se situe entre mer et montagne. Plébiscitée pour sa douceur, ses saveurs et pour son soleil, Nice incarne la dolce vita provençale. C'est dans ce coin de paradis que la résidence « Villa Gabriel » s'installe, au coeur du centre-ville, en proposant des appartements allant du 2 au 4 pièces. Dans le quartier résidentiel de Saint-Jean d'Angély, dans un cadre de vie authentique et recherché, profitez des restaurants, cafés, commerces et services de proximité. Plusieurs établissements scolaires sont également accessibles à pied comme le campus de Saint-Jean d'Angély, l'école de journalisme ou encore l'école-collège Blanche de Castille.
ATOUTS
Des généreux balcons et terrasses. Parking privatif. En centre-ville.
ACCES
A 50m des à pied des transports en commun : tramway ligne 1, bus lignes 80 et 84. Le Vieux Nice et les plages en 15 minutes de transports en commun. A 4 minutes en bus de la gare SNCF Nice Riquier. A 10 km de l'aéroport Nice-Côte d'Azur.
82.3 m²
5 893 €
23 m²
4
3
1
1
1
4 sur 6
Sud
Ouest
Oui
2
Oui
Contact GAIRAUT IMMOBILIER
Contacter gratuitement à l'aide du formulaire ci-dessous.