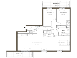
Nous vous proposons ce 4 pièces très bien agencé avec espace nuit bien séparé, au 3 ème et dernier étage Le Séjour Cuisine américaine de 28m2 donne accès à une une terrasse de 7m2 Plein sud pour profiter des beaux jours. 2 des 3 chambres, donnent sur une spacieuse terrasse. L'espace de vie donne sur l'arrère du batiment très au calme, plein sud et avec une vue très dégagée pour ce dernier étage. Situé à 2 mn à pied du RER A SUCY, il vous sera très facil de vous déplacer ou de profiter des commerces des environs. Une place de parking, en sous sol sécurisé, est compris dans ce prix, Idéal pour les familles avec notamment des écoles très reputées à proximité, je suis à votre écoute pour répondre à vos questions. Les informations sur les risques auxquels ce bien est exposé sont disponibles sur le site Géorisques : www.georisques.gouv.fr
Pour tous renseignements veuillez me contacter au 06 63 08 94 49 ou par email c.domingues@parlonsimmo.io
80 m²
7 404 €
29 m²
4
3
1
1
2
3 sur 3
Sud
Ouest
Oui
1
Oui
2
Oui
Oui
Contact DOMINGUES Céline
Contacter gratuitement à l'aide du formulaire ci-dessous.