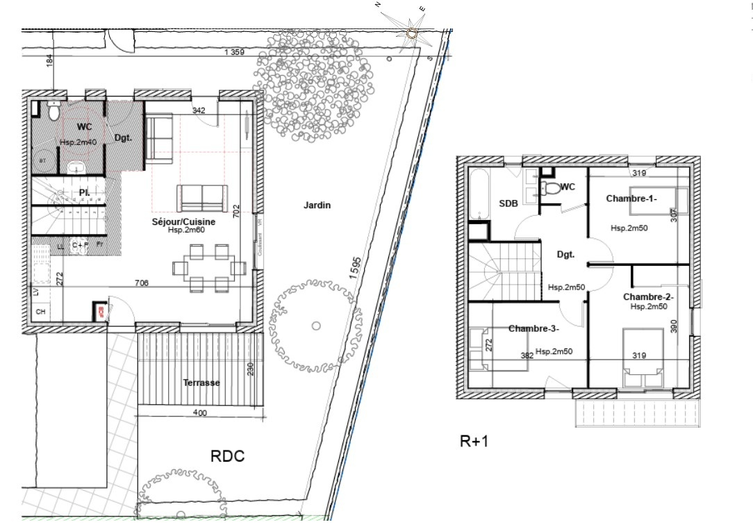
Venez découvrir cette maison d'une surface habitable de 99 m², au charme contemporain proposant des volumes agréables. Au rez-de-chaussée, vous découvrirez un espace de vie lumineux de 54 m² comprenant un salon et une cuisine ouverte, parfait pour des moments conviviaux. La salle de bains spacieuse est pensée pour allier confort et praticité. À côté de la cuisine se trouve un cellier. Les toilettes indépendantes complètent ce niveau.
Depuis le séjour, vous accédez à une pièce carrelée, pouvant faire office de véranda ou d'espace de vie complémentaire.
À l'étage, le dégagement mène à deux chambres équipées de placards. Des toilettes indépendantes sont également présentes à ce niveau.
Possibilité d'acquérir un grand garage en sus, fermé.
Idéalement située dans le 9 arrondissement de Lyon, vous bénéficierez d'un accès facilité aux transports (métro ligne D, bus C14, C6 et 31, et gare de Vaise) ainsi qu'aux écoles, commerces et services de proximité.
Les informations sur les risques auxquels ce bien est exposé sont disponibles sur le site Géorisques : www.georisques.gouv.fr.
Vous voulez en savoir plus ? Prenez contact avec Andréa ANGEÏ au 06/35/31/63/42 andrea.angei@blaow.fr EI / RSAC : 819 659 442
Référence : 19
Honoraires à la charge du vendeur. Dans une copropriété de 2 lots. Aucune procédure n'est en cours. Classe énergie D, Classe climat D Montant moyen estimé des dépenses annuelles d'énergie pour un usage standard, établi à partir des prix de l'énergie de l'année 2021 : entre 1420.00 et 1960.00 . Les informations sur les risques auxquels ce bien est exposé sont disponibles sur le site Géorisques : georisques.gouv.fr. Ce bien vous est proposé par un agent commercial (Entreprise individuelle).