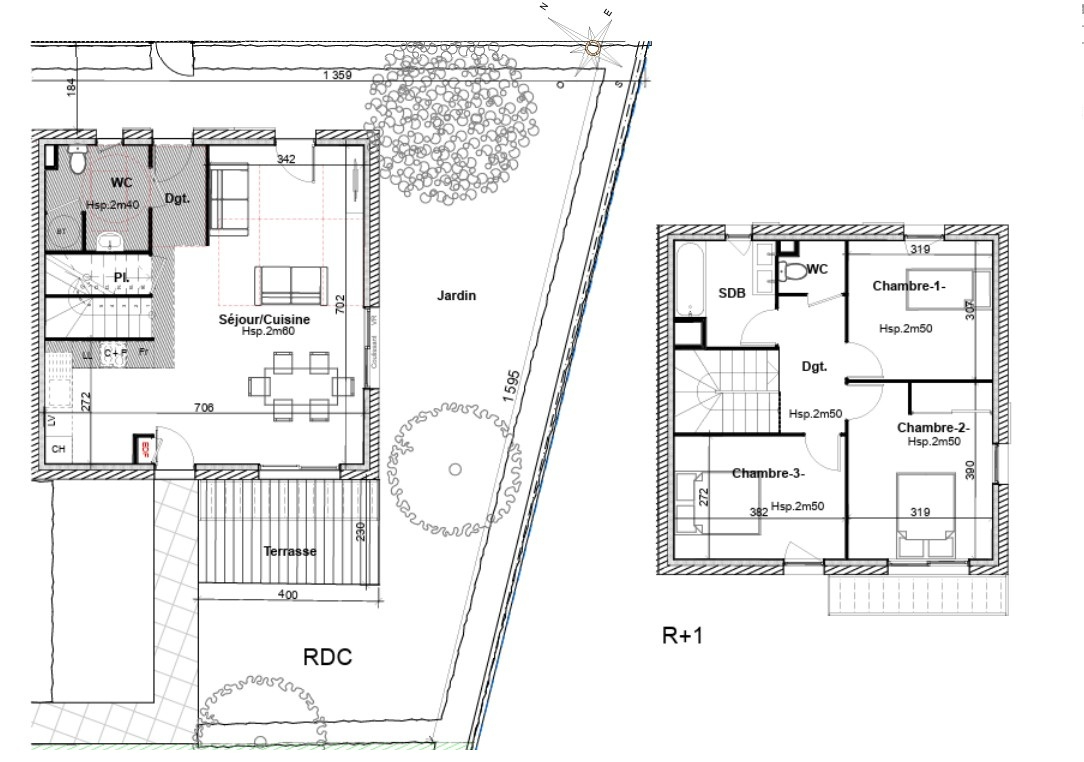
Exclusivité : Villa Mitoyenne familiale avec espace aménagé  Civrieux-d'Azergues (69380) À seulement 20 minutes de Lyon, dans un cadre résidentiel, cette villa de 118 m²env habitables, construite en 1988, offre de beaux volumes répartis sur trois niveaux. Au rez-de-chaussée, une spacieuse pièce de vie de 39,23 m² bénéficiant d'une double exposition Est-Ouest, garantissant une luminosité optimale tout au long de la journée. À l'étage, l'espace nuit se compose de trois chambres confortables, d'une salle d'eau et d'un WC indépendant. Le niveau inférieur, aménagé, abrite une chambre parentale avec dressing et salle d'eau, ainsi qu'une buanderie et une cave de 39,23 m². L'extérieur offre deux terrasses et un jardin. La maison est équipée de 12 panneaux photovoltaïques de 6 kW chacun, apportant une performance énergétique appréciable. Proche de Lyon, cette maison combine tranquillité et accessibilité aux principales commodités. Contact Estelle Chambourdon 06 60 21 41 90 ec@zephyrimmoconseil.fr RCS 882 554579 Honoraire charge Vendeur. Les informations sur les risques auxquels ce bien est exposé sont disponibles sur le site Géorisques : www.georisques.gouv.fr
Honoraires à la charge du vendeur. Classe énergie D, Classe climat B Montant estimé des dépenses annuelles d'énergie pour un usage standard : entre 1790.00  et 1790.00  sur les années 2021, 2022 et 2023 (abonnements compris). Les informations sur les risques auxquels ce bien est exposé sont disponibles sur le site Géorisques : georisques.gouv.fr.
Retrouvez l'annonce de l'agence immobilière ZEPHYR IMMO Conseil sur : http://www.zephyrimmoconseil.fr/immobilier/maison-villa-civrieux-dazergues-vente-fr_VM349.htm
Villa
118 m²
3 305 €
39 m²
442 m²
6
4
2
2 (séparés)
1988
Est
Ouest
Oui
2
1
2
Consommations énergétiques
Logement économe
245
Logement énergivore (kWhEP/m2/an)
Émissions de gaz à effet de serre
Faible émission de GES
7
Forte émission de GES(kgeqCO2/m2/an)
Contact Estelle chambourdon
Contacter gratuitement à l'aide du formulaire ci-dessous.